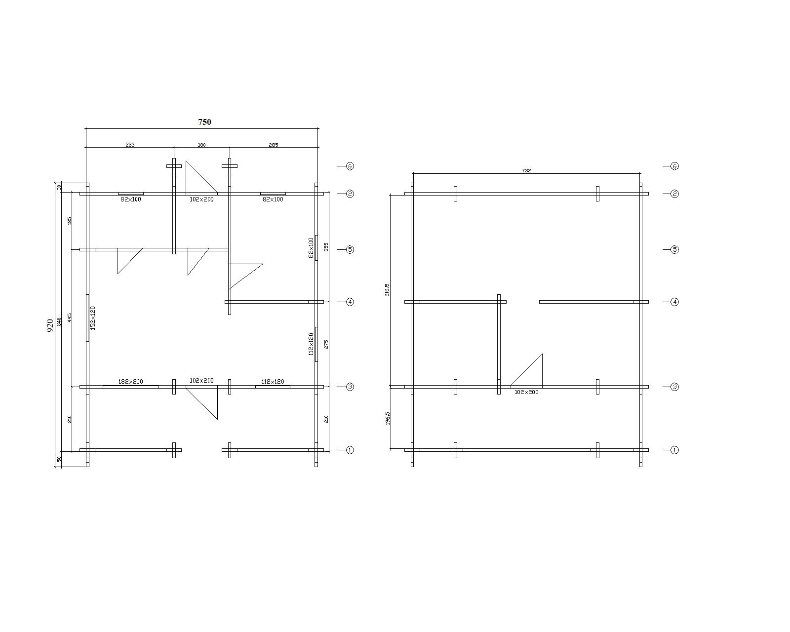
Eric T B95 cottage


The house "Eric T. B95" is a summer house with sauna in the wild of south Finland. A huge "hems" is allowing up to 4 people to sleep upstairs. A western terrace is the gate to the surounding nature. This house is making your holidays very special.

The client did chose the DIY version of this project and managed the job with some friends very well.